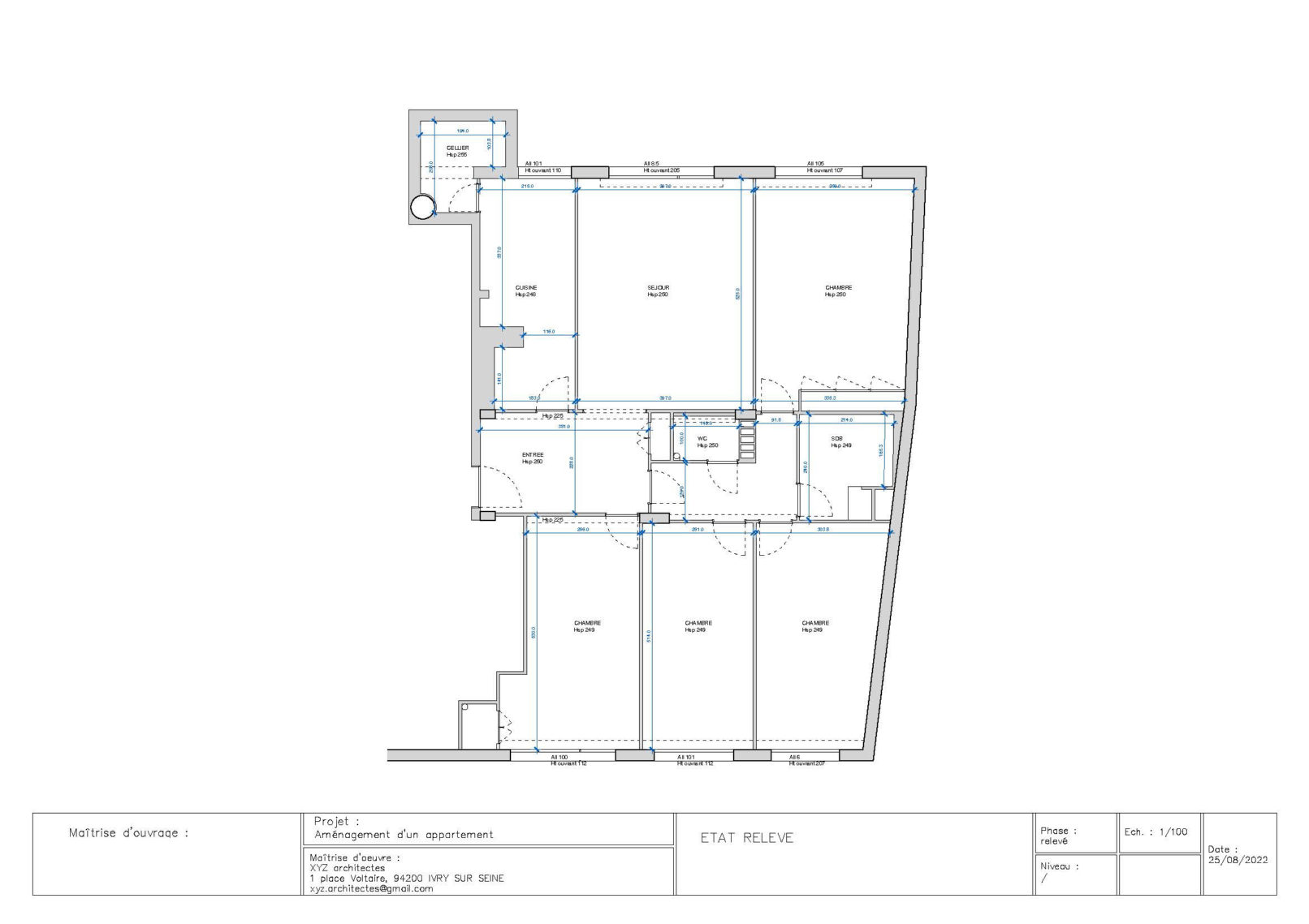
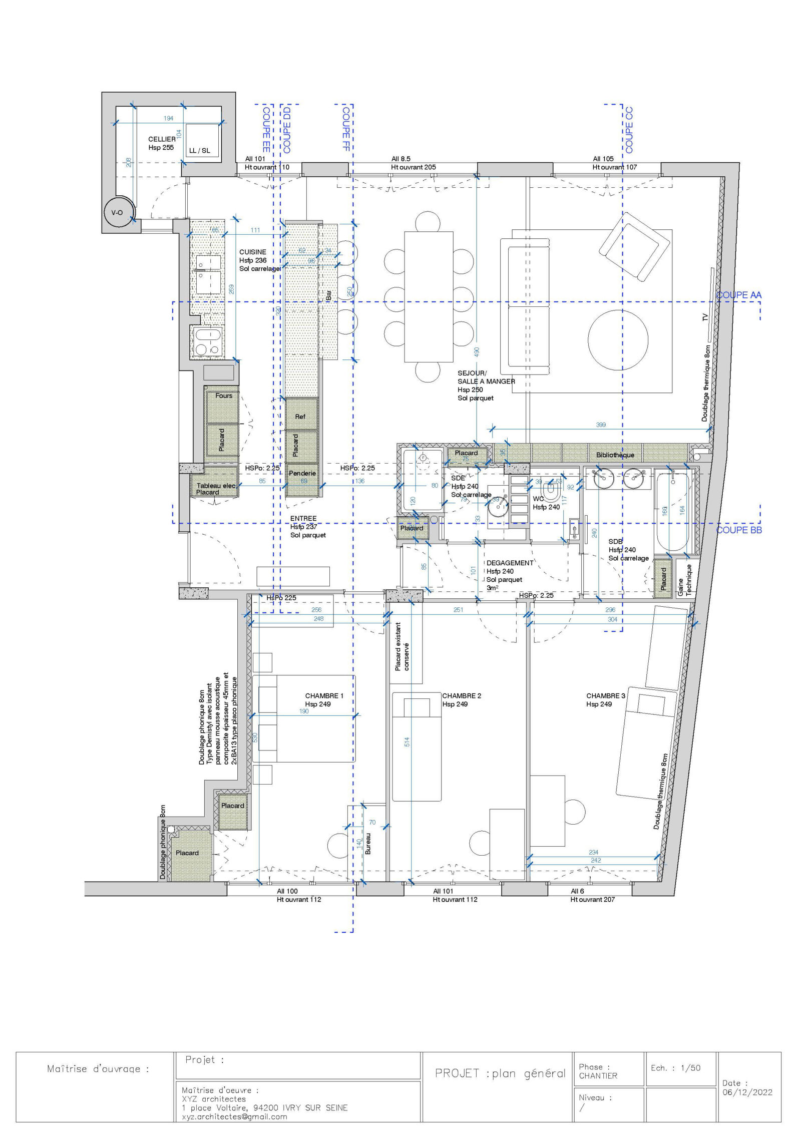
Appartement MV
Mise aux normes électriques, réorganisation et rénovation des espaces d’un appartement à Montreuil.
- Maitrise d’ouvrage : privé.
- Programme : Rénovation et réaménagement des espaces de l’appartement existant. Création d’une salle d’eau supplémentaire.
- Mission : complète.
- Surface existante : 116 m².
- Budget travaux : 64 000 € HT.












