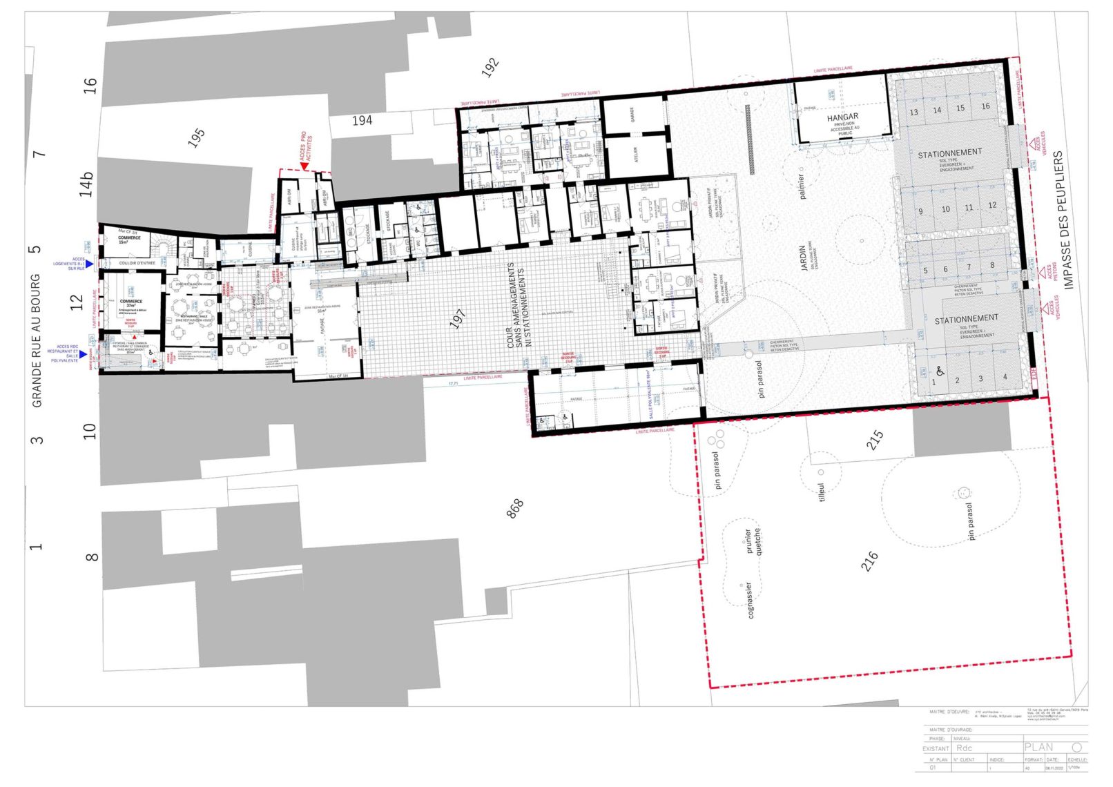
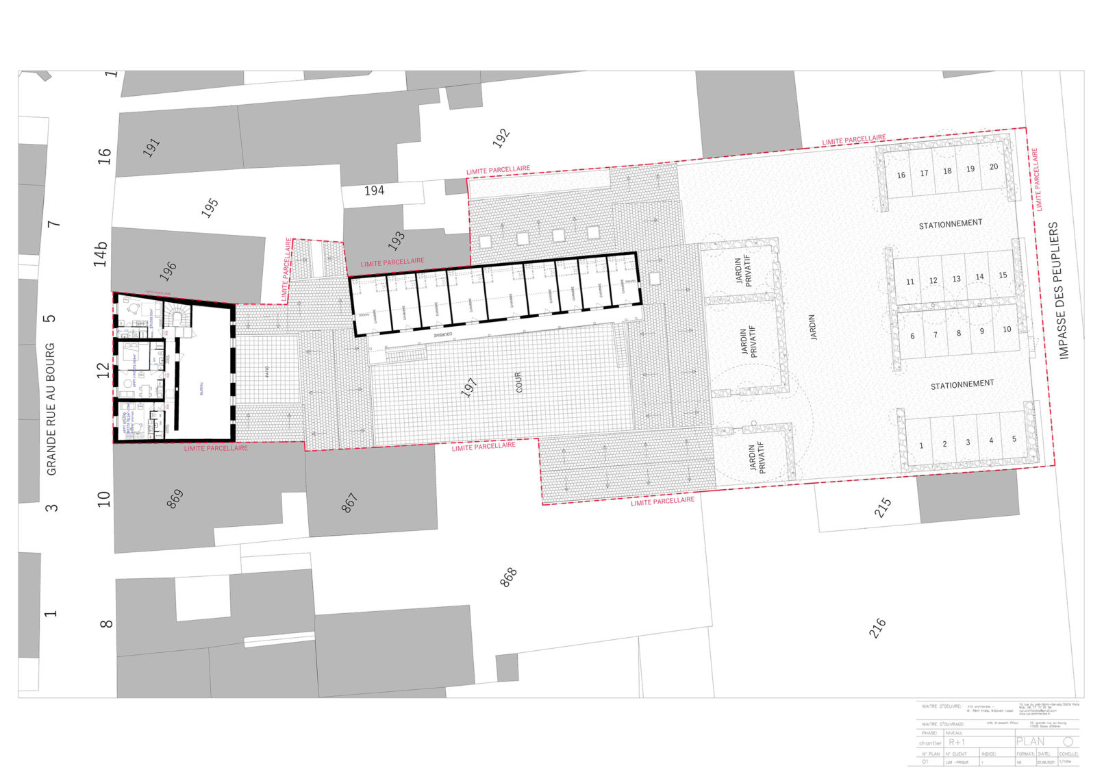
Colo d’Oléron
Transformation d’une ancienne colonie de vacances en un ensemble regroupant un restaurant, des logements, un commerce, une salle polyvalente et des bureaux
- Maitrise d’ouvrage : Privé
- Programme : Rénovation et réaménagement
- Mission : complète
- Surface : terrain 2847m², bâtiments 1254m²
- Budget travaux : 110 000 € HT














