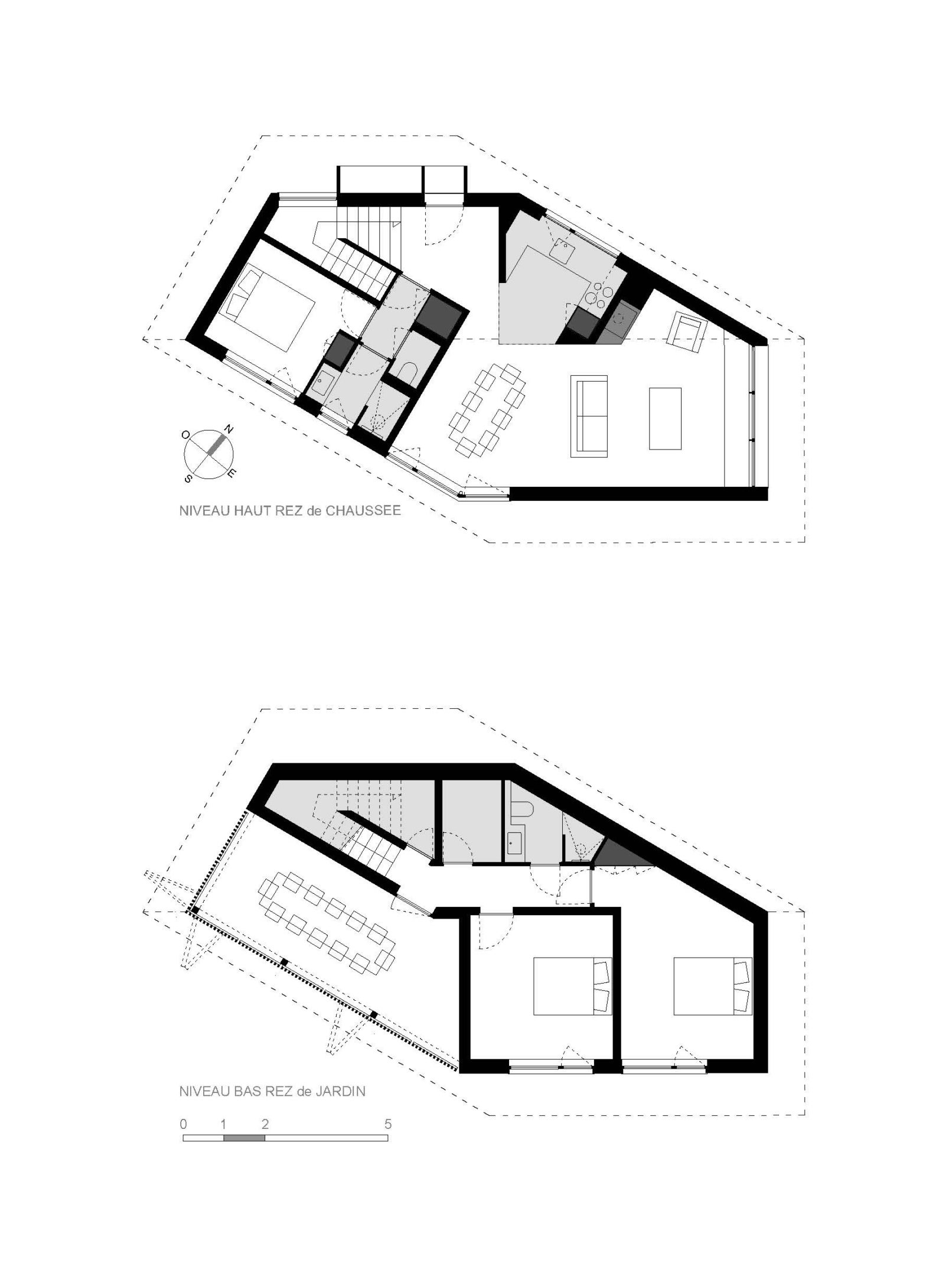
Maison K

Construction d’une maison à Saulxures-sur-Moselotte

Conception Rémi Kneip.

  • Maîtrise d’ouvrage : privée
  • Programme : Construction d’une maison familiale (auto-construction)
  • Mission complète.
  • Surface : 110m²
  • Enveloppe budgétaire définitive : 190 000€TTC