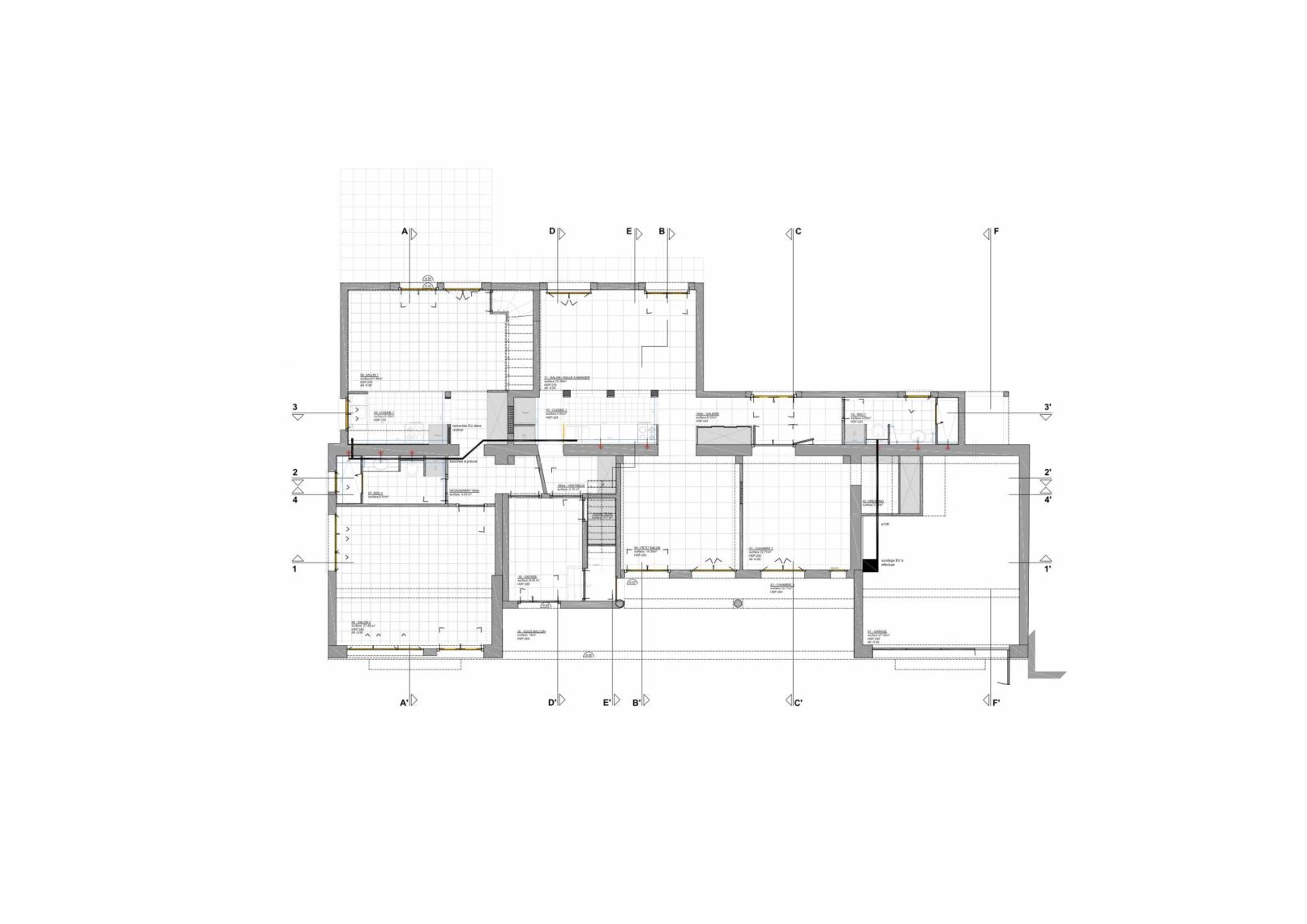
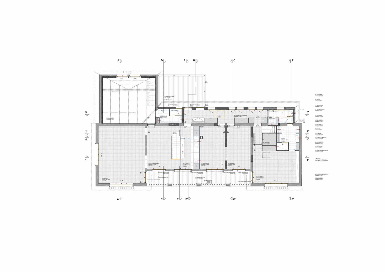
Maison Ltw
Rénovation d’une maison à Deauville.
Coopération avec l’Atelier de l’Échiquier http://www.atelierdelechiquier.fr/
- Maîtrise d’ouvrage : privée
- Programme : aménagement de l’ensemble de la maison. Création de trois appartements distincts.
- Mission complète + mission complémentaire de paysage
- Surface : 325m²
- Enveloppe budgétaire définitive : 700 000€TTC




















