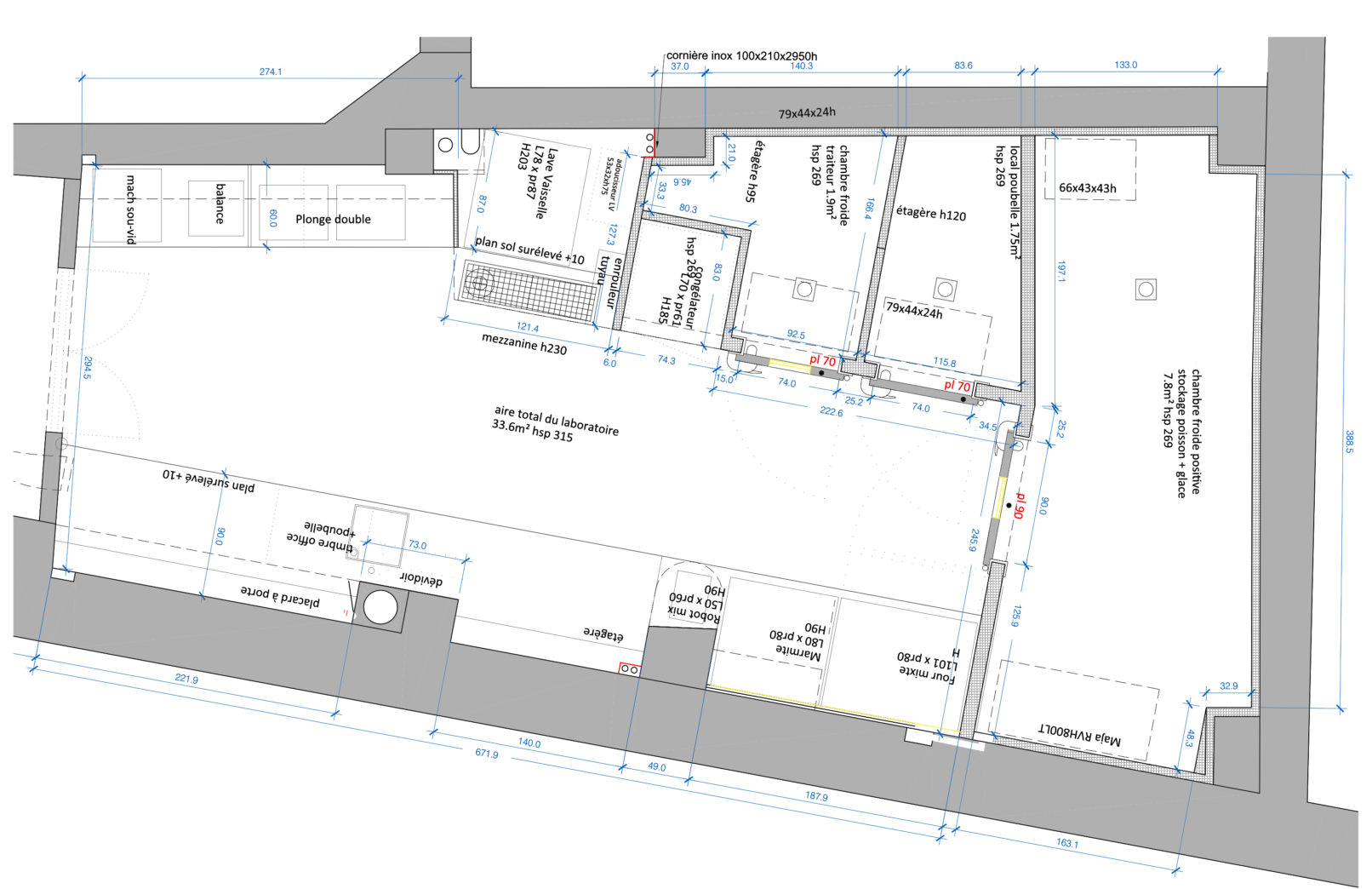
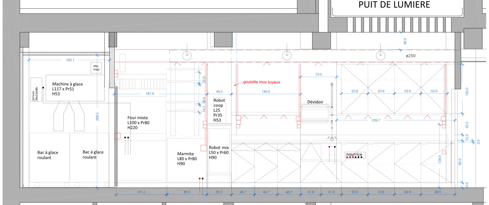
Poissonnerie du Dôme

61 rue Damrémont, 75018 Paris

Création d’un laboratoire / cuisine professionnelle

  • Maîtrise d’ouvrage : privée.
  • Programme : conception de la cuisine de la poissonnerie du Dôme (Paris 18è).
  • Mission complète.
  • Surface : 35m²
  • Enveloppe budgétaire définitive : 250 000€HT